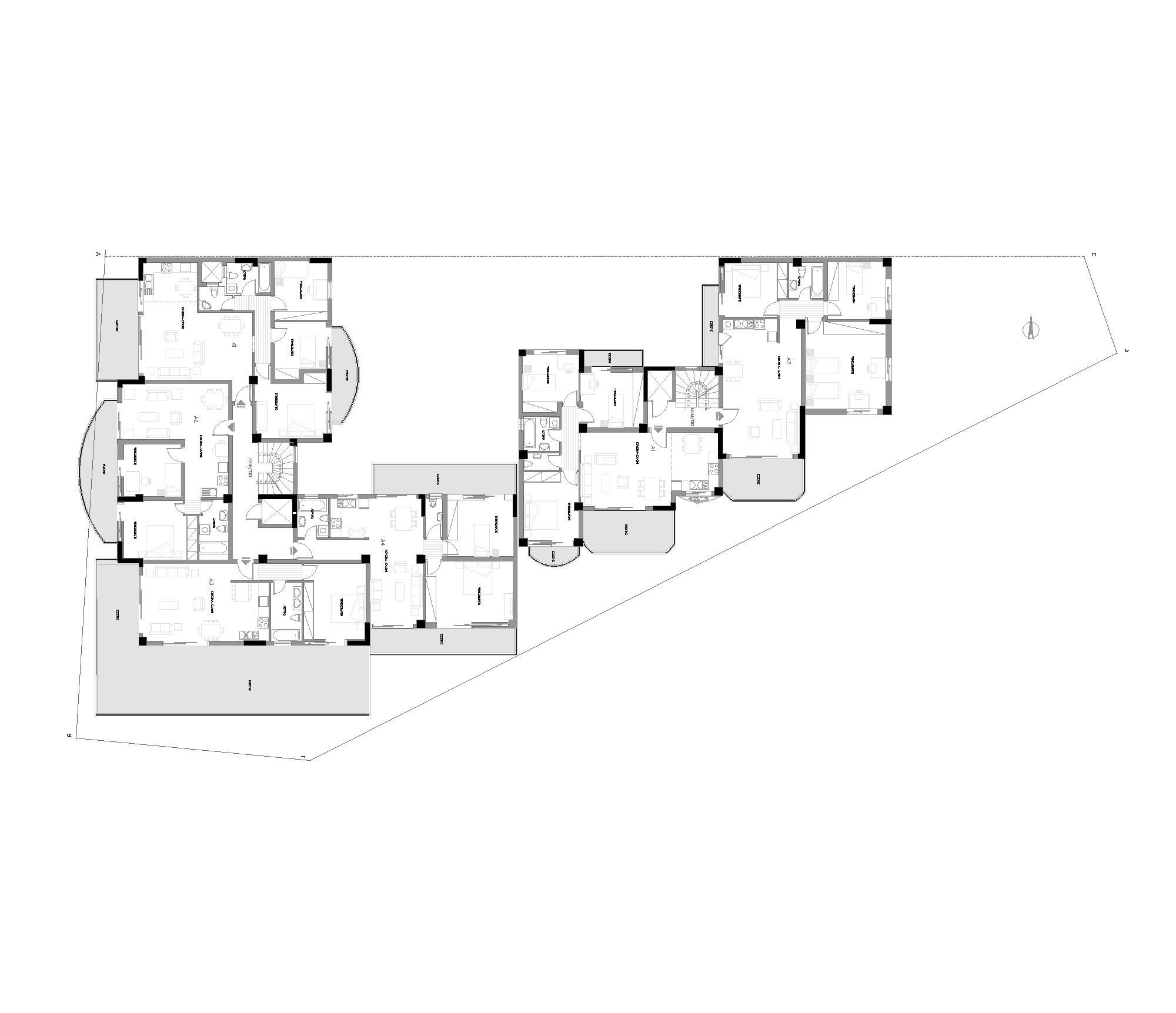
ΣΥΓΚΡΟΤΗΜΑ ΔΥΟ ΕΠΤΑΩΡΟΦΩΝ ΟΙΚΟΔΟΜΩΝ
Μελέτη: Αρχιτεκτονική Σεραφίδη 2007
Κατασκευή: Αρχιτεκτονική Σεραφίδη 2009
->Επιφάνεια οικοπέδου Ε=1170 τ.μ.
->Δομημένη επιφάνεια Ε=3.050τ.μ.
->34 διαμερίσματα
Μελέτη: Αρχιτεκτονική Σεραφίδη 2007
Κατασκευή: Αρχιτεκτονική Σεραφίδη 2009
->Επιφάνεια οικοπέδου Ε=1170 τ.μ.
->Δομημένη επιφάνεια Ε=3.050τ.μ.
->34 διαμερίσματα
Πρόκειται για συγκρότημα δύο επταώροφων κτιρίων επί pilotis με υπόγειο σε γωνιακό οικόπεδο . στην Δραπετσώνα Πειραιά.Βασική αντίληψη ήταν η κατοίκηση στη πόλη ικανοποιώντας τις ανάγκες περιοχής. Χρησιμοποιώντας την αφαίρεση και την οικονομία ,επιτυγχάνεται η βέλτιστη λειτουργικότητα κάθε διαμερίσματος όπου όλα κοιτούν τον δρόμο και κατ’επέκταση την θεά. Η συνολική δόμηση των κτιρίων φθάνει τα 3050 τ.μ. με 34 διαμερίσματα διαφορετικών επιφανειών και δύο ισόγεια καταστήματα.Τα δύο κτίρια ξεκινούν ως ενιαίος πολυμορφικός όγκος ενώ στην συνέχεια στον δεύτερο όροφο αποκόβονται. Η λειτουργία τους είναι ανεξάρτητη αφού καθένα διαθέτει δικό του κλιμακοστάσιο.