ΔΙΠΛΟΚΑΤΟΙΚΙΑ ΣΤΟ ΧΑΙΔΑΡΙ
Μελέτη: Αρχιτεκτονική Σεραφίδη ,2003
Κατασκευή: Αρχιτεκτονική Σεραφίδη, 2005
Μελέτη: Αρχιτεκτονική Σεραφίδη ,2003
Κατασκευή: Αρχιτεκτονική Σεραφίδη, 2005
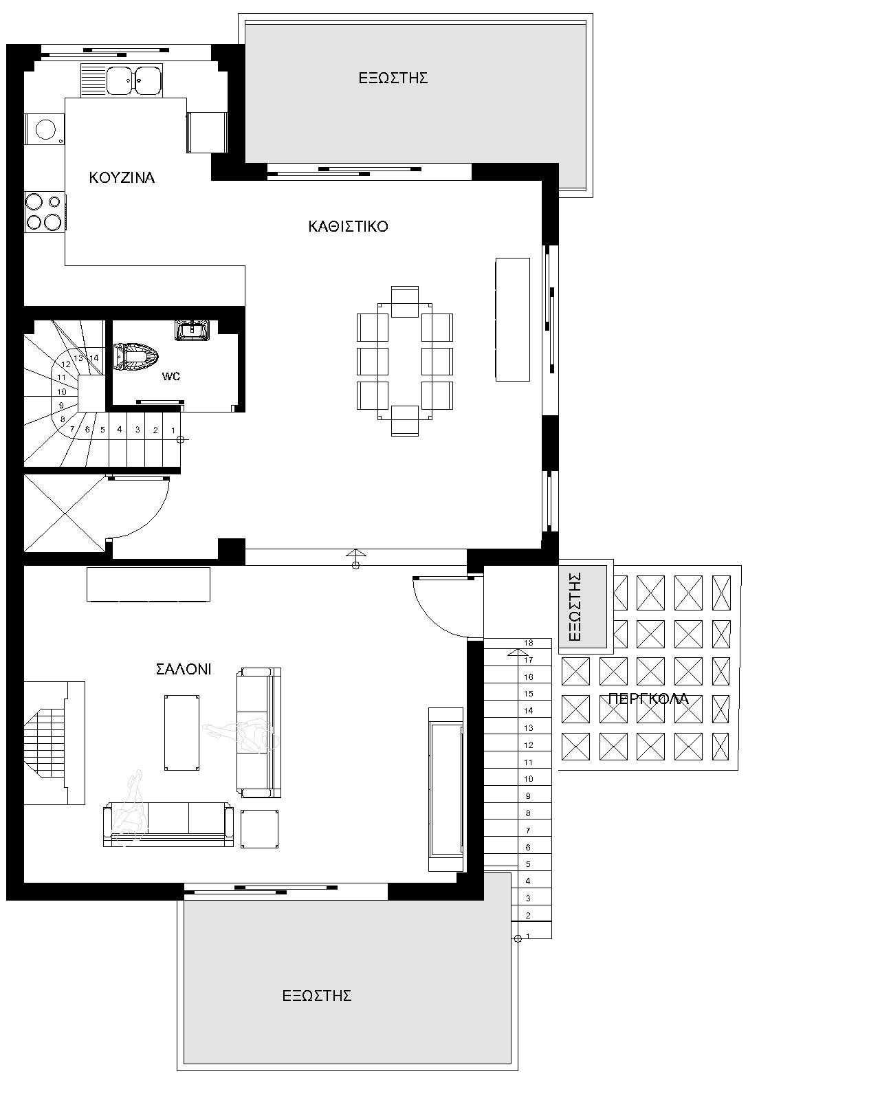
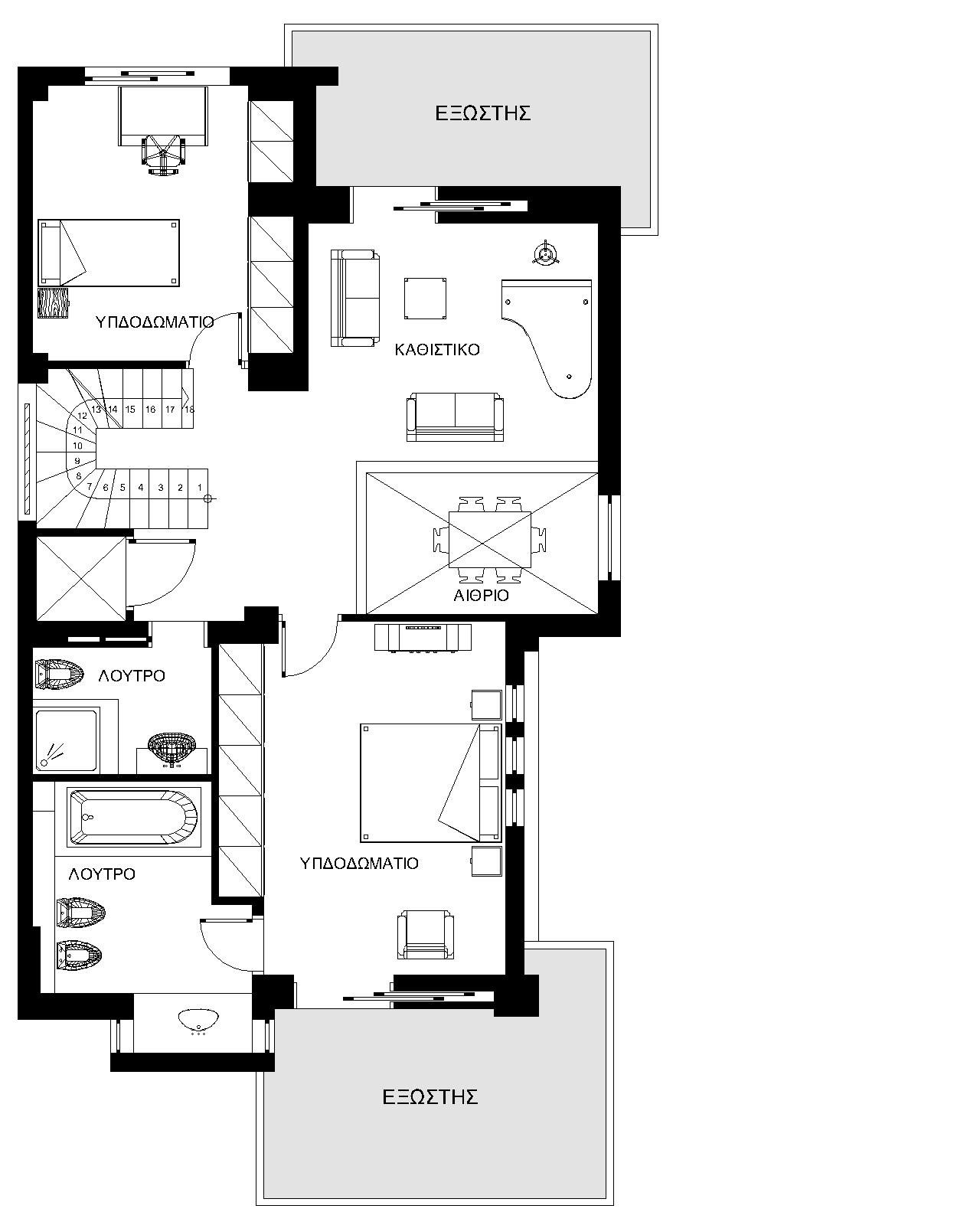
Η διπλοκατοικία βρίσκεται στο Χαϊδάρι σε ένα μεσαίο οικόπεδο με ήπια κλίση και διαρθρώνεται σε ένα οροφοδιαμέρισμα και μία μεζονέτα τριών επιπέδων.
Η μεζονέτα αποτελείται από τους χώρους διημέρευσης στον πρώτο όροφο, δηλαδή, το καθιστικό , την τραπεζαρία και την κουζίνα ενώ τα υπνοδωμάτια και το καθημερινό αναπτύσσονται στους υπόλοιπους ορόφους επιτυγχάνοντας την δυνατότητα της απομόνωσης.Η δημιουργία αίθριου διασφαλίζει την επικοινωνία και την λειτουργικότητα των ορόφων. Η οπή στον εξώστη δημιουργεί έναν πρωτότυπο διάλογο ανάμεσα στην αρχιτεκτονική και το τοπίο ,σεβόμενη την διαχρονικότητα της φύσης. Τέλος, η επιλογή εξωτερικής θερμομόνωσης σε συνδυασμό με την ενδοδαπέδια θέρμανση επιτυγχάνει θερμική άνεση στους εσωτερικούς χώρους του κτιρίου.